Santa Lucia Guest House

Location:

Carmel-by-the-Sea, CA


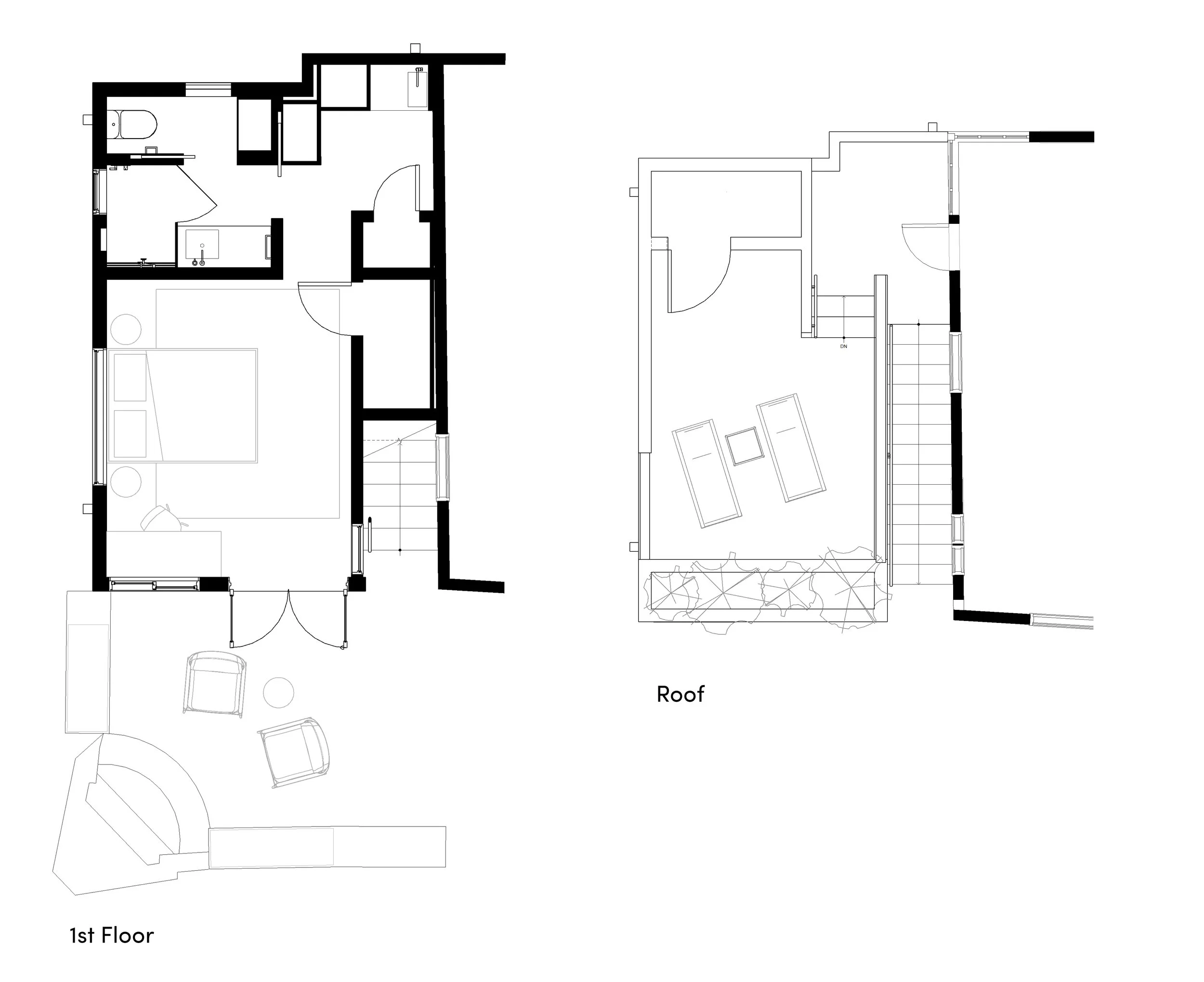
Sited discreetly at the rear of a century-old Carmel stone cottage, this 300-square-foot guest house was conceived as a strategic renovation that maximizes both livability and property value. The project combines a new accessory dwelling unit—complete with ensuite bath and kitchenette—with a roof deck serving an existing upper-level guest apartment, unlocking accelerated permitting while expanding usable outdoor space

PROJECT DATA:

  • Location: Carmel-by-the-Sea, California 

  • Size: 300 SF 

  • Timeline: ~3 months permitting and 6 months construction


Despite its compact footprint, the guest house feels remarkably generous due to a highly efficient plan and strong indoor-outdoor connections. The architecture pays careful homage to the original cottage, drawing on its stonework, beadboard detailing, and relaxed Carmel vernacular. Above, the new roof deck creates a private viewing platform oriented toward the ocean and Carmel Beach.

Together, the improvements convert the property into a flexible three-bedroom, three-bath compound—significantly increasing its utility, rental potential, and long-term market value.

 

Before + After