Torres Garage ADU Conversion

Location:

Carmel-by-the-Sea, CA


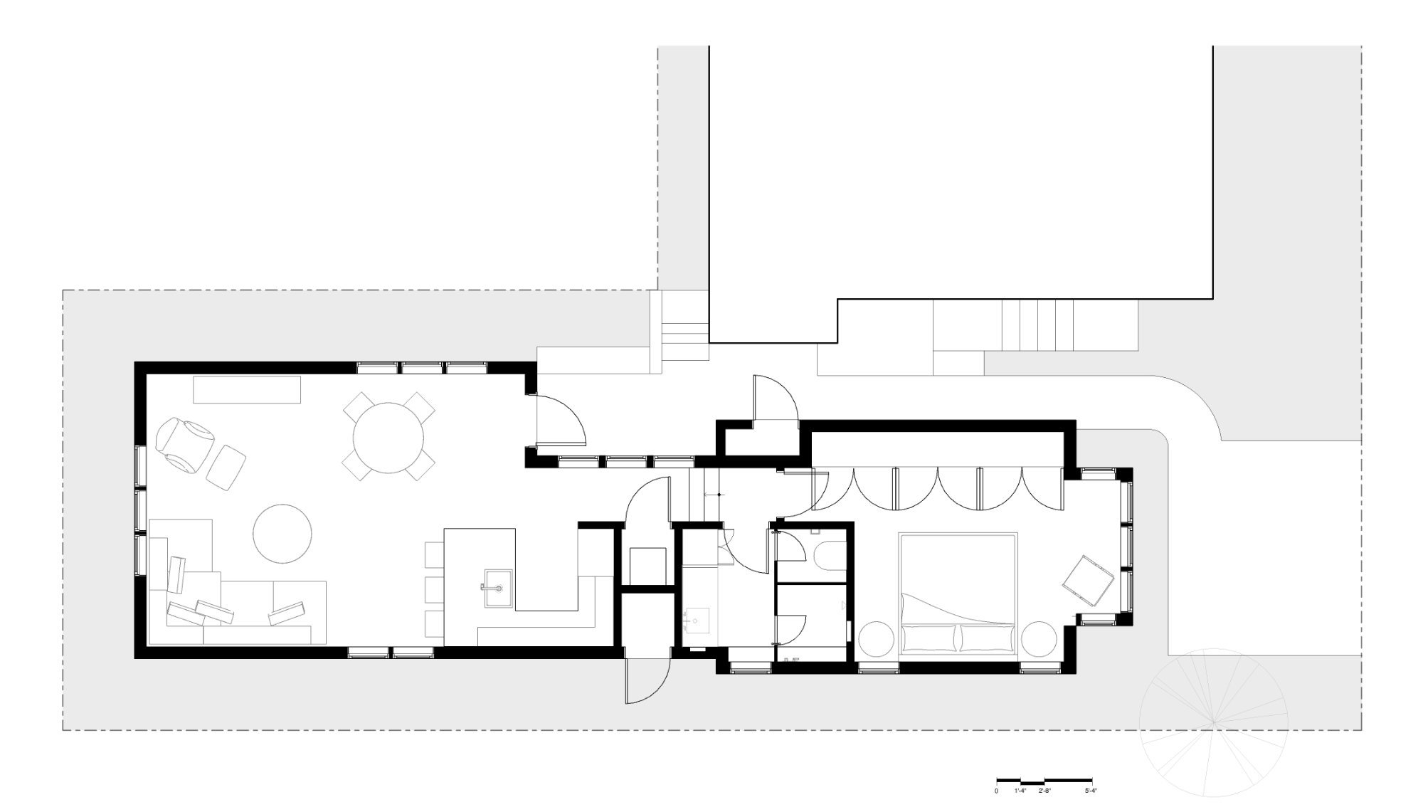
Situated on a tight in-town parcel within a close-knit neighborhood, this garage conversion transforms an underutilized structure into a self-sufficient one-bedroom ADU.

PROJECT DATA:

  • Location: Carmel-by-the-Sea, California 

  • Size: 700 SF 

  • Timeline: ~3 months permitting and 9 months construction


A new bay window adds street presence, while the entry is organized around an intimate courtyard. Through careful planning, the property accommodates a 700-square-foot cottage that increases the home from 1,100 to 1,800 square feet.

The project significantly enhances flexibility, livability, and market value while maintaining neighborhood scale.

 

Before + After