Sea Ranch Renovation

Location:

Sonoma County, CA


This project repositions a modest ranch-style house within the iconic Sea Ranch community into a contemporary interpretation of its landscape-driven architecture.

PROJECT DATA:

  • Location: Sea Ranch, California 

  • Size: 1800 SF 

  • Timeline: ~ongoing


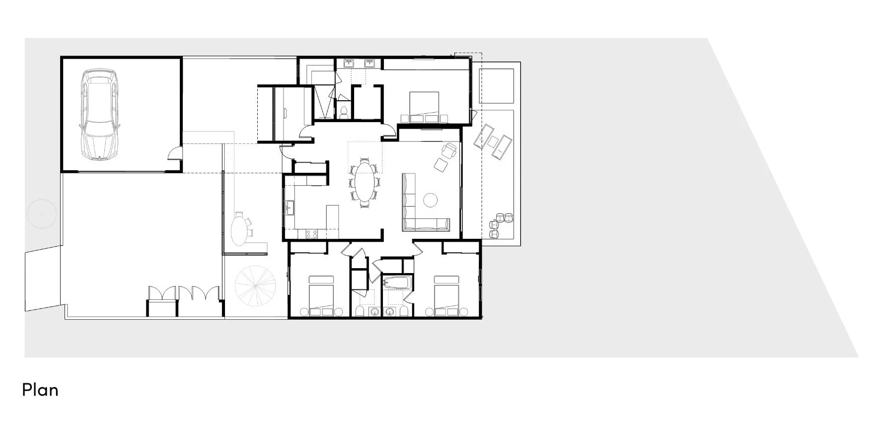
Strategic interventions restore connections to meadow and ocean views while introducing a new garage to create a sheltered entry courtyard. A covered walkway and dining courtyard provide protected outdoor rooms, while a third bedroom improves flexibility.

The renovation blends Scandinavian and Japanese influences and was developed as a phased strategy, allowing incremental investment while increasing architectural integrity and long-term value.

 

Photos